Courtesy of Ali Shaben of Sable Realty

7803 77 Street, Land for sale in King Edward Park Edmonton , Alberta , T6C 0M7

 MLS® # E4463578

Sign up to View

Days on Market

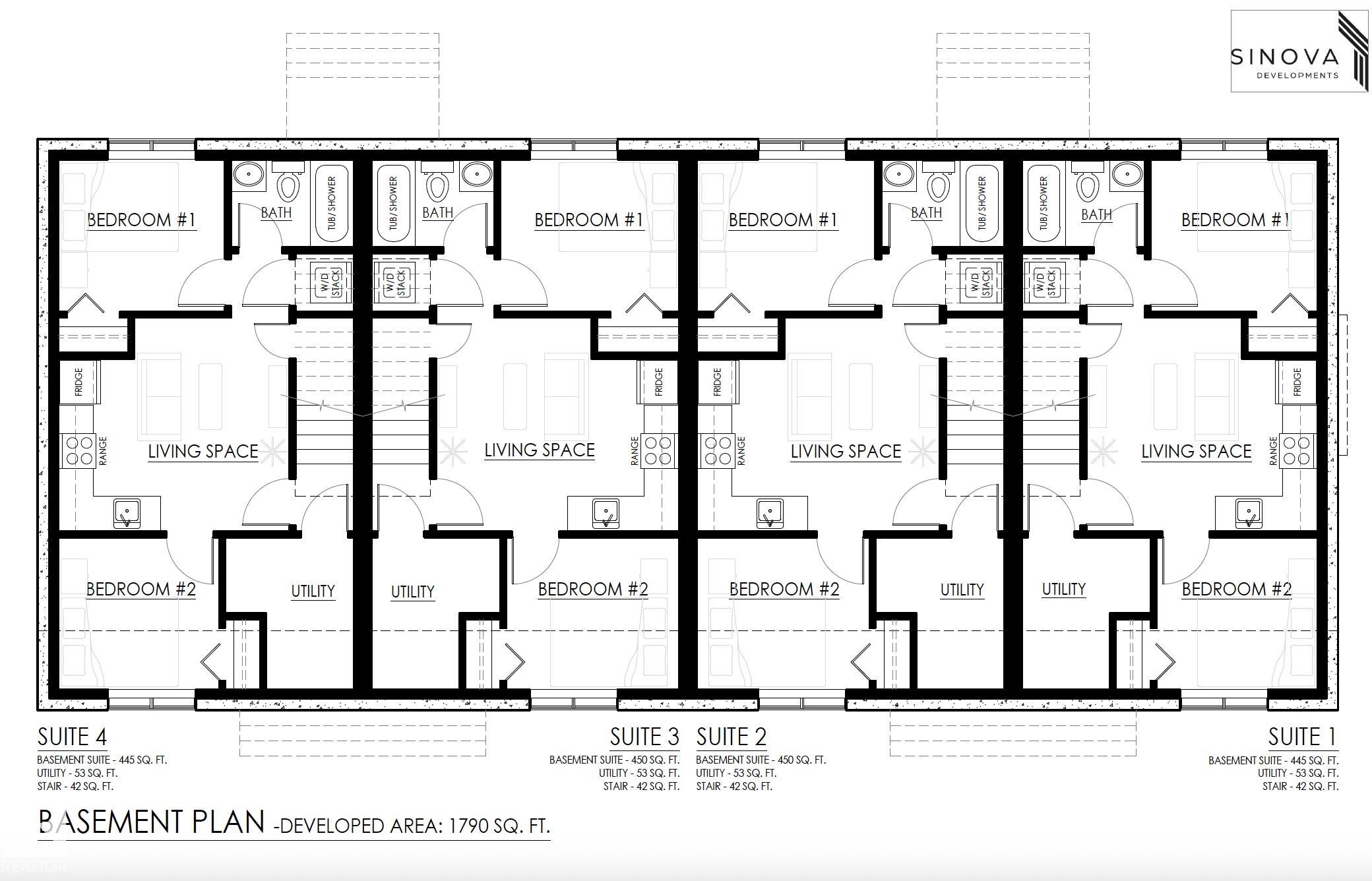
Investor Alert! Rare shovel-ready multi-family development opportunity in King Edward Park. Approved for an 8-unit building, each featuring a 2-bedroom upper suite and a 2-bedroom basement suite, a total of 16 bedrooms across 8 units. Fully CMHC-compliant design meeting the latest energy efficiency and building standards. The sale includes complete architectural, structural, civil, and landscaping drawings, along with approved development and building permits, ready for immediate construction. The lot is cl...

Read More

Essential Information

  • MLS® #
    E4463578
  • Property Type
    Residential
  • MLS® #
    E4463578
  • Property Type
    Residential
  • MLS® #
    E4463578
  • Property Type
    Residential

Community Information

  • Area
    Edmonton
  • Neighbourhood/Community
    King Edward Park
  • Postal Code
    T6C 0M7
  • Area
    Edmonton
  • Neighbourhood/Community
    King Edward Park
  • Postal Code
    T6C 0M7
  • Area
    Edmonton
  • Neighbourhood/Community
    King Edward Park
  • Postal Code
    T6C 0M7

Exterior

  • Lot/Exterior Features
    Corner Lot
  • Lot/Exterior Features
    Corner Lot
  • Lot/Exterior Features
    Corner Lot

Additional Details

  • Property Class
    Single Family
  • Site Influences
    Corner Lot
  • Road Access
    Paved
  • Last Updated
    9/0/2025 23:1
  • Property Class
    Single Family
  • Site Influences
    Corner Lot
  • Road Access
    Paved
  • Last Updated
    9/0/2025 23:1
  • Property Class
    Single Family
  • Site Influences
    Corner Lot
  • Road Access
    Paved
  • Last Updated
    9/0/2025 23:1

$650,000

7803 77 Street

Schedule Tour
Contact Agent

$2960/month
Est. Monthly Payment
$
$
%
Learn More

Mortgage values are calculated by Redman Technologies Inc based on values provided in the REALTOR® Association of Edmonton listing data feed.