Courtesy of Jazmin Laframboise of Exp Realty

3 85 SPRUCE VILLAGE DR Drive Spruce Grove , Alberta , T7X 0L2

 MLS® # E4471934

3 bedrooms

3 bathrooms

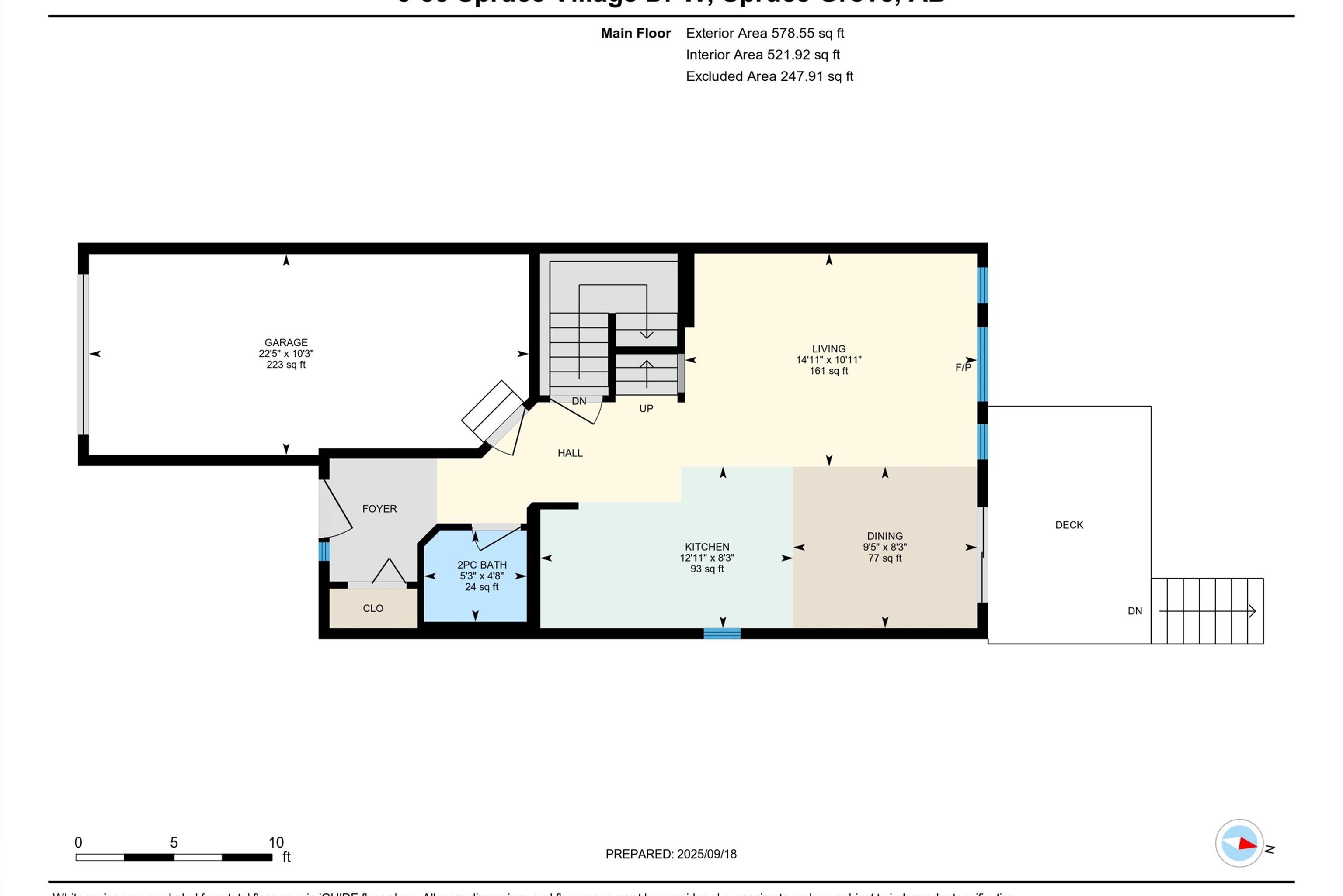
1,288 sqft

Sign up to View

Days on Market

Deck Exterior Walls- 2"x6" No Animal Home Vinyl Windows

Well maintained half duplex bareland condo is move in ready! Super low condo fee ($110/month) is for garbage pickup and crescent street snow removal in the winter; no waiting for the city to get it done! The thoughtful layout works great for entertaining and family living with ample counter space, an island, and open concept living with patio door to deck in the spacious yard! The living room is cozy with a gas fireplace. Upstairs are 3 good sized bedrooms with the primary room featuring a spacious walk in ...

Read More

Essential Information

  • MLS® #
    E4471934
  • Year Built
    2011
  • Property Type
    Residential
  • Property Style
    2 Storey
  • MLS® #
    E4471934
  • Year Built
    2011
  • Property Type
    Residential
  • Property Style
    2 Storey
  • MLS® #
    E4471934
  • Year Built
    2011
  • Property Type
    Residential
  • Property Style
    2 Storey

Community Information

  • Area
    Spruce Grove
  • Neighbourhood/Community
    Spruce Village
  • Condo Name
    Vanderbilt Common
  • Postal Code
    T7X 0L2
  • Area
    Spruce Grove
  • Neighbourhood/Community
    Spruce Village
  • Condo Name
    Vanderbilt Common
  • Postal Code
    T7X 0L2
  • Area
    Spruce Grove
  • Neighbourhood/Community
    Spruce Village
  • Condo Name
    Vanderbilt Common
  • Postal Code
    T7X 0L2

Services & Amenities

  • Amenities
    Deck
    Exterior Walls- 2x6
    No Animal Home
    Vinyl Windows
  • Amenities
    Deck, Exterior Walls- 2x6, No Animal Home, Vinyl Windows
  • Amenities
    Deck
    Exterior Walls- 2x6
    No Animal Home
    Vinyl Windows

Interior

  • Floor Finish
    Carpet
    Laminate Flooring
  • Goods Included
    Dishwasher-Built-In
    Dryer
    Garage Control
    Microwave Hood Fan
    Refrigerator
    Stove-Electric
    Washer
  • Heating Type
    Forced Air-1
    Natural Gas
  • Fireplace Fuel
    Gas
  • Basement
    Full
  • Basement Development
    Unfinished
  • Floor Finish
    Carpet, Laminate Flooring
  • Goods Included
    Dishwasher-Built-In, Dryer, Garage Control, Microwave Hood Fan, Refrigerator, Stove-Electric, Washer
  • Heating Type
    Forced Air-1, Natural Gas
  • Fireplace Fuel
    Gas
  • Basement
    Full
  • Basement Development
    Unfinished
  • Floor Finish
    Carpet
    Laminate Flooring
  • Goods Included
    Dishwasher-Built-In
    Dryer
    Garage Control
    Microwave Hood Fan
    Refrigerator
    Stove-Electric
    Washer
  • Heating Type
    Forced Air-1
    Natural Gas
  • Fireplace Fuel
    Gas
  • Basement
    Full
  • Basement Development
    Unfinished

Exterior

  • Lot/Exterior Features
    Fenced
    Golf Nearby
    Picnic Area
    Playground Nearby
    Public Transportation
    Schools
    Shopping Nearby
  • Roof
    Asphalt Shingles
  • Foundation
    Concrete Perimeter
  • Lot/Exterior Features
    Fenced, Golf Nearby, Picnic Area, Playground Nearby, Public Transportation, Schools, Shopping Nearby
  • Roof
    Asphalt Shingles
  • Foundation
    Concrete Perimeter
  • Lot/Exterior Features
    Fenced
    Golf Nearby
    Picnic Area
    Playground Nearby
    Public Transportation
    Schools
    Shopping Nearby
  • Roof
    Asphalt Shingles
  • Foundation
    Concrete Perimeter

Additional Details

  • Property Class
    Condo
  • Site Influences
    Fenced
    Golf Nearby
    Picnic Area
    Playground Nearby
    Public Transportation
    Schools
    Shopping Nearby
  • Road Access
    Paved
  • Last Updated
    1/1/2026 20:31
  • Property Class
    Condo
  • Site Influences
    Fenced, Golf Nearby, Picnic Area, Playground Nearby, Public Transportation, Schools, Shopping Nearby
  • Road Access
    Paved
  • Last Updated
    1/1/2026 20:31
  • Property Class
    Condo
  • Site Influences
    Fenced
    Golf Nearby
    Picnic Area
    Playground Nearby
    Public Transportation
    Schools
    Shopping Nearby
  • Road Access
    Paved
  • Last Updated
    1/1/2026 20:31

$345,000

3 85 SPRUCE VILLAGE DR Drive

Schedule Tour
Contact Agent

$1572/month
Est. Monthly Payment
$
$
%
Learn More

Mortgage values are calculated by Redman Technologies Inc based on values provided in the REALTOR® Association of Edmonton listing data feed.